垂水区山手8丁目 新築戸建
〇クリナップ製CENTRO仕様のキッチン♪
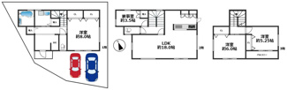
〇家事室付で使いやすい間取り♪
〇玄関も広くシューズインクローゼット付♪ベビーカーやゴルフバッグ等も収納できます♪
〇並列車庫2台(車種制限有)♪EV車充電設備もあります♪
〇浴室乾燥機付ユニットバスで雨の日のお洗濯にも大活躍♪
〇対面キッチンでお子様の様子を見ながら家事が出来ます♪
〇床暖房で寒い冬も暖かく過ごして頂けます♪
ローンシミュレーションこの物件を購入した場合の、月々の支払い価格の一例です。借り入れを保証するものではございません。
- 返済期間
-
- 金利
-
- ボーナス時の増額(1回分)
-
- 借入金額:
-
- 頭金:
-

- 毎月の返済額:
(※元利均等方式 金利5.00%まで ※返済年数5~50年まで入力できます)
(※ボーナスは年2回で計算しています。1000万円まで入力できます)
(※物件購入時、その他諸費用が発生する場合がございます)
担当者のコメント 前田まり子

- ご覧頂きありがとうございます♪並列2台駐車可能(車種制限有)の物件です♪奥様に嬉しい設備がたくさん詰まっています♪ローンのことや気になる事などお気軽にご相談下さい♪0120-134-414「前田」まで♪
物件概要
【新築一戸建】 物件番号:98415796 情報更新日:2025年11月10日 次回更新予定日:2025年11月24日| 所在地 | 兵庫県神戸市垂水区山手8丁目 | ||
|---|---|---|---|
| 交通 | |||
| 間取り/詳細 |
3LDK+1S(納戸)/ S 2.5帖 1室 |
建物面積(坪数) | 113.44㎡(34.31坪) |
| 価格 | 2,980万円 | ||
| 駐車場/月額料金 | 有(2台)/0円 車種制限有 | ||
| 土地の敷金/保証金 | -/- | 借地料/借地期間 | -/- |
| 土地権利 | 所有権 | 土地面積(坪数) | 88.31㎡(26.71坪) |
| 傾斜地部分面積 | - | 路地状敷地 | - |
| 私道負担面積/セットバック | 1.89㎡/済 | 高圧線下面積 | - |
| 地目/地勢 | 宅地/- | 接道状況 | - |
| 建ぺい率/容積率 | 60%/150% | 用途地域 | 第一種中高層住居専用 |
| 都市計画 | 市街化区域 | 種別/構造 | 新築一戸建/木造 |
| 階建 | 2階建 | 築年月(築年数) | 2025年 9月 (新築) |
| 総区画数/販売区画数 | 1区画/1区画 | 向き | 南 |
| 現況 | 完成済み | その他の法令上の制限 | - |
| 取引態様/引渡時期 | 一般媒介/相談 | 建築確認番号 | 第J24-20652号 |
| 物件番号 | 98415796 | 取引条件の有効期限 | 2025年11月24日 |
| 設備条件 |
|
||
| 備考 |
【周辺環境】 ・神戸市立福田小学校…徒歩約4分 ・神戸市立垂水東中学校…徒歩約9分 ・コープ福田…徒歩約6分 ・ファミリーマート神戸東垂水三丁目店…徒歩約4分 ・工藤整形外科医院…徒歩約6分 ・スーパーサンディ東垂水店…徒歩約6分 |
||
| 取扱会社 |
|
||
※地図上に表示される物件の位置は付近住所に所在することを表すものであり、実際の物件所在地とは異なる場合がございます。

















