旧谷口整形外科 1-2階
≪≪お問い合わせの際は電話番号をご入力ください♪≫≫
- 賃料
- 110万円
- 坪単価
- 0.91万円
- 坪数/面積
- 120.99坪 /
400.00㎡
- 所在階
- 1-2階
- 管理費・共益費
- -
- 保証金
- 1ヶ月
- 礼金
- 2ヶ月
-
初期費用シミュレーションこの物件を借りた場合の初期費用の一例です。
- 賃料
- 管理費・共益費
- 保証金:
- 礼金
- 前家賃(日割り) ※1
-
- 前家賃(日割り)
- 仲介手数料 ※2
- その他費用
- 合計
※1. 1か月を30日として計算しています。
※2. 仲介手数料は仮の価格となりますので、実際の価格に関してはお気軽にお問い合わせ下さい。
情報の見方担当者のコメント 中村敦

- 建物の敷地内に空いている駐車場があるのでご利用いただけます。2駅利用できる場所にあるので利便性が高いです。広々とした室内となっておりますのでスクール向けです。初期費用のカード決済ができます。需要の高い好立地です。落ち着ける環境をお探しの方にぴったりな静かな環境です。礼金2ヶ月分など、入居に際して契約金が必要なのでご用意願います(^_^)
ポイント・特徴
物件概要
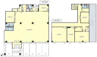
【ビル】 物件番号:98297102 情報更新日:2025年11月06日 次回更新予定日:2025年11月20日所在地 兵庫県神戸市長田区大塚町7丁目 交通 賃料/坪単価 110万円/0.91万円 坪数(面積) 120.99坪(400.00㎡) 管理費・共益費 - 敷金/礼金/保証金 -/2ヶ月/1ヶ月 償却/敷引 -/- 更新料 - 駐車場/月額料金 有(4台)/0円 権利金/雑費 -/- 保険加入/料金 有/- 保険名/保険期間 -/- 保証人代行義務/利用料 必加入/ 初期:総家賃の100%~ 保証会社 その他 保証会社詳細 - 向き - 築年月(築年数) - (-) 契約期間 2年 種別/構造 ビル/鉄筋コンクリート 部屋/所在階/階建 -/1-2階/- 現況 空家 引渡時期 即時 取引態様 一般媒介 物件番号 98297102 取引条件の有効期限 2025年11月20日 設備条件 - 陽当り良好
- 閑静な住宅地
- 事務所可
- 高齢者相談
- バリアフリー
- 眺望良好
- 法人可
- スクール向け
- クリニック向け
- スケルトン渡し
- 24時間利用可能
- 視認性良好
- 好立地
- 静かな環境
- 室内洗濯機置場
- ベランダ
- バルコニー
- 都市ガス
- 公営水道
- 公共下水
- 24時間換気システム
- 電気有
- 駐輪場
- バイク置場あり
- IHクッキングヒーター
- システムキッチン
- 洗面台
- 男女トイレ別
- トイレ2ヶ所
- 独立洗面台
- エアコン
- 収納豊富
- CS
- BS
- CATV
- インターネット対応
- 住戸内覧可能
- 初期費用カード決済可
備考 駅が周辺に2つあるので行動範囲が広がります。駐車スペースが充実。駐3台可なので複数台駐車ができます。今なら駐車場に空きあり、お車をお持ちの方に。広々とした室内となっておりますのでスクール向けです。立地が良く広い室内なのでスクール向けになっています。落ち着いた雰囲気の静かな環境。周辺環境の充実した好立地(^o^) 取扱会社 - (株)プラスエステートホーム
- 兵庫県神戸市長田区水笠通4丁目1-1 ルータス山吉112
- TEL:078-786-3241
- 兵庫県知事 (2) 第12138号
- 公益社団法人 全国宅地建物取引業協会連合会
公益社団法人 全国宅地建物取引業保証協会
※地図上に表示される物件の位置は付近住所に所在することを表すものであり、実際の物件所在地とは異なる場合がございます。
物件お問い合わせ
同じエリアのビル
この物件を見た方へのお勧め物件
- 苅藻島町2丁目 事務所・倉庫
- 143万円 -/81.56㎡
- 兵庫県神戸市長田区苅藻島町2丁目
- 神戸市海岸線「苅藻」駅 徒歩9分
- かどとビル 事務所 倉庫
- 8.8万円 -/60.00㎡
- 兵庫県神戸市長田区腕塚町1丁目
- 山陽本線「新長田」駅 徒歩9分
- 神楽町4丁目貸ビル
- 7.7万円 -/36.32㎡
- 兵庫県神戸市長田区神楽町4丁目
- 山陽本線「新長田」駅 徒歩4分















