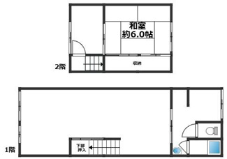
西長洲町1丁目 倉庫 1-2階
倉庫利用としてお考え下さい!!1階広々スペース♪
- 賃料
- 4万9,500円
- 坪単価
- 0.38万円
- 坪数/面積
- 14.49坪 /
47.92㎡
- 所在階
- 1-2階
- 管理費・共益費
- -
- 敷金
- -
- 礼金
- 4.95万円
初期費用シミュレーションこの物件を借りた場合の初期費用の一例です。
- 賃料
- 管理費・共益費
- 敷金:
- 礼金
- 前家賃(日割り) ※1
-
- 前家賃(日割り)
- 仲介手数料 ※2
- その他費用 ※3
- 合計
※1. 1か月を30日として計算しています。
※2. 仲介手数料は仮の価格となりますので、実際の価格に関してはお気軽にお問い合わせ下さい。
※3. その他費用の項目は、保険料になります。
担当者のコメント 宮本賢司

- こちらは初期費用をカードでお支払いいただける物件です。物件の周辺に2駅あるので移動範囲も広がります。駅まで徒歩15分でアクセス可能な物件です。オフィスとしてもご利用いただける物件です。価格5.5万円ながら充実した設備のこちらの物件は、多くの方におすすめです。時間帯に縛られる事のない24時間利用可能(^_^)
ポイント・特徴
物件概要
【倉庫】 物件番号:96866346 情報更新日:2025年11月09日 次回更新予定日:2025年11月23日| 所在地 | 兵庫県尼崎市西長洲町1丁目 | ||
|---|---|---|---|
| 交通 | |||
| 賃料/坪単価 | 4.95万円/0.38万円 | 坪数(面積) | 14.49坪(47.92㎡) |
| 管理費・共益費 | - | 敷金/礼金/保証金 | -/4.95万円/- |
| 償却/敷引 | -/- | 更新料 | - |
| 駐車場/月額料金 | 無/- | 権利金/雑費 | -/- |
| 保険加入/料金 | 有/19,800円 | 保険名/保険期間 | -/2年 |
| 保証人代行義務/利用料 | -/ 初期:総家賃の100%~ | 保証会社 | その他 |
| 保証会社詳細 | 更新:10,000/年毎 | 向き | - |
| 築年月(築年数) | 1935年 1月 (築90年) | 契約期間 | 2年 |
| 種別/構造 | 倉庫/木造 | 部屋/所在階/階建 | -/1-2階/2階建 |
| 現況 | 空家 | 引渡時期 | 相談 |
| 取引態様 | 一般媒介 | ||
| 物件番号 | 96866346 | 取引条件の有効期限 | 2025年11月23日 |
| 設備条件 |
|
||
| 備考 | ぜひ一度見ていただきたい、「西長洲町1丁目 倉庫」です。周辺に駅が二つあり、交通の利便性が高いです。初期費用はカードで決済いただけます。賃料を10万円以下に抑えたい方におすすめです。時間帯に縛られる事のない24時間利用可能(^_^) | ||
| 条件(その他) | ※倉庫利用とお考え下さい。 | ||
| 取扱会社 |
|
||
※地図上に表示される物件の位置は付近住所に所在することを表すものであり、実際の物件所在地とは異なる場合がございます。















